GXF斜流风机是一种新型低噪高效节能型斜流式通风机,斜流式通风机流量大于离心风机,全压高于轴流式风机,体积小于离心式风机,该风机通过了模拟机的实验研究,采用新的叶型与叶片,从而得到了更大的流量和压力, 提高了风机的效率。
GXF系列斜流通风机按叶轮直径分为300-1400mm十六种规格,按类型分A、B、C、D、E、F、S七种类型,共五十八个机号。风量由1500mm-90000m3/h,全压由185-2500Pa;这样就给设计部门和也难怪乎单位提供了充分的选择条件,具体数据参照风机性能参数表。

风机材料有钢制,玻璃钢制作,亦可防爆制作。(采用防爆措施,配用铝合金材料)
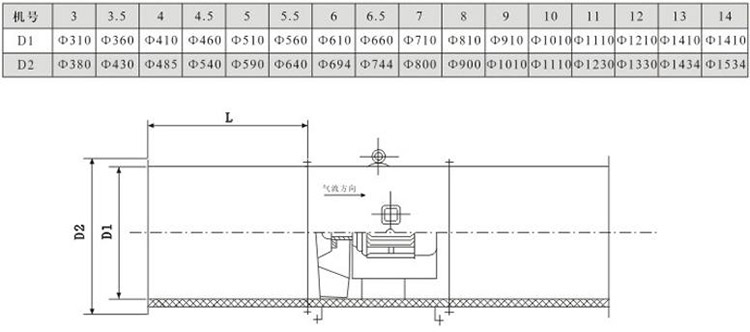
四、GXF系列斜流式通风机外形及安装尺寸(mm)
GXF系列斜流式通风机外形及安装尺寸(A、B、C、D、E、F型)
GXF系列斜流式通风机是一种新型低噪高效节能型斜流式通风机,斜流式通风机流量大于离心式风机,全压高于轴流式风机,体积小于离心式风机,该风机通过了模拟机的实验研究,采用新的叶型与叶片,从而得到了更大的流量和压力, 提高了风机的效率。
GXF系列斜流通风机按叶轮直径分为300-1400mm十六种规格,按类型分A、B、C、D、E、F、S七种类型,共五十八个机号。风量由1500mm-90000m3/h,全压由185-2500Pa;这样就给设计部门和也难怪乎单位提供了充分的选择条件,具体数据参照风机性能参数表。
风机材料有钢制,玻璃钢制作,亦可防爆制作。(采用防爆措施,配用铝合金材料)
GXF系列斜流式通风机性能参数表
GXF系列斜流风机分GXF-B型、GXF-C型、GXF-D、GXF-E、GXF-F、GXF-S型,种类型号齐全,欢迎选购!
GXF-BX消声型斜流风机
GXF-BX1消声型斜流风机安装尺寸(mm)

GXF-BX2消声型斜流风机安装尺寸(mm)
